Quadrilocale in vendita

Siziano, Via Dalla Chiesa
€ 380.000
4 locali 4 locali
136 Mq 136 Mq
2 bagni 2 bagni

Quadrilocale in vendita

Siziano, Via Dalla Chiesa

Descrizione annuncio

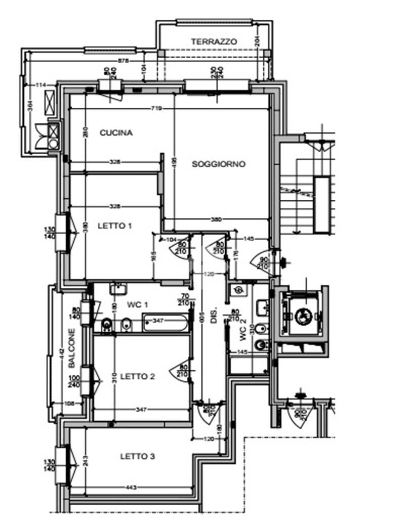
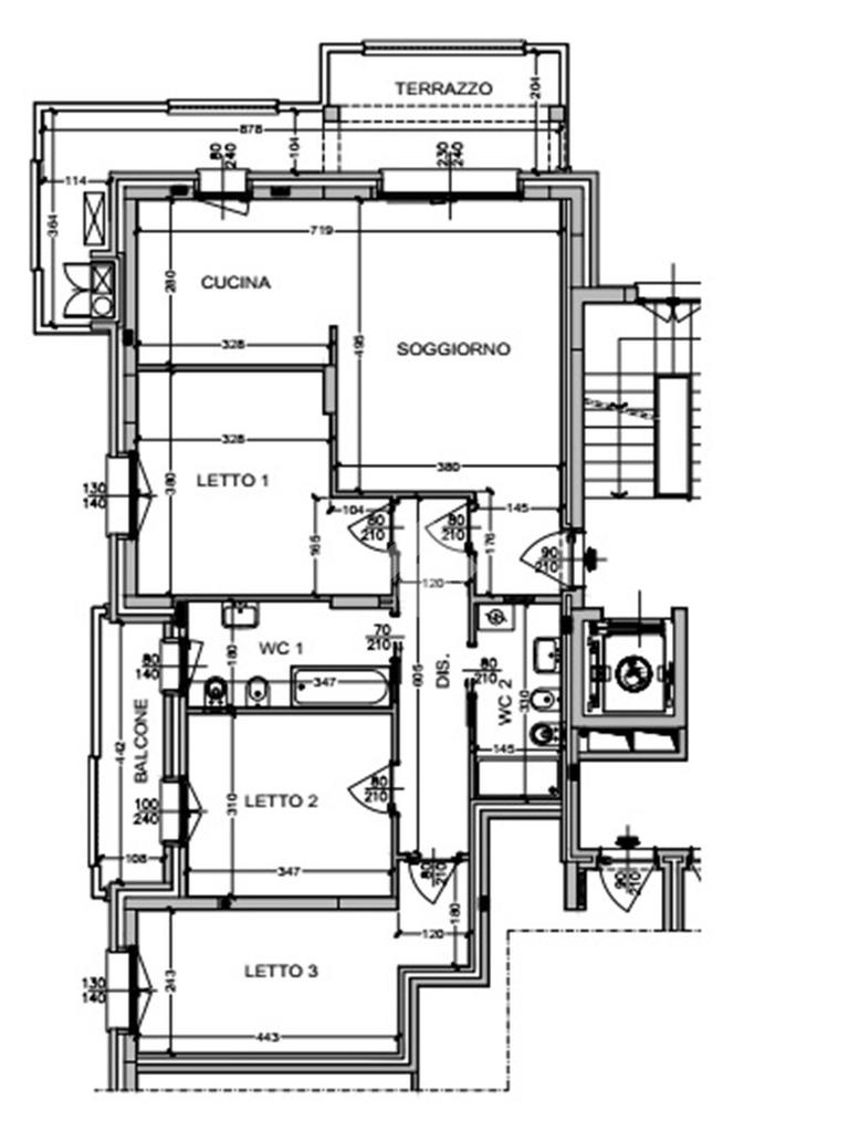
SIZIANO: RESIDENZA CORALLO - Appartamento, in costruzione, composto da sala con terrazzo, cucina abitabile, tre camere e due bagni e balcone. Cantina e box al piano terra. Possibilità di soluzioni di diverse metrature anche con giardino.

Consegna fine 2027


Il progetto prevede l'edificazione di palazzine di quattro piani, tutte dotate di ascensore, che ospiteranno appartamenti di 2-3-4 locali, di varie tipologie per soddisfare le diverse esigenze abitative.
L'architettura delle palazzine si distinguerà per le facciate predominantemente realizzate in mattoni a vista, con particolare attenzione alla costruzione in muratura finalizzata al contenimento energetico e acustico, garantendo così un elevato standard di comfort abitativo.

Il complesso si distinguerà anche per la sua sostenibilità ambientale, in quanto il fabbisogno energetico delle parti comuni sarà assicurato attraverso un impianto fotovoltaico posizionato sopra al tetto dei box.

Il capitolato di alto livello riflette la cura nei dettagli e l'attenzione alla qualità dei materiali adottati. Tra le caratteristiche principali, si evidenziano:

- Serramenti esterni in legno bianco, dotati di triplo vetro e zanzariere, che conferiscono un'eleganza raffinata ed elevati standard di isolamento.
- Avvolgibili elettrificati in alluminio, garantendo una gestione agevole e automatizzata dell'apertura e della chiusura degli stessi.
- Pavimentazione in gres porcellanato, posata e fugata con precisione, per un'estetica moderna e una manutenzione agevole.
- Porta blindata, garanzia di sicurezza e protezione per gli abitanti.
- Porte interne in laminato bianco, che uniscono funzionalità ed estetica, integrandosi armoniosamente con lo stile degli interni.
- Impianto di riscaldamento a pavimento con pompa di calore a corrente, per un comfort termico ottimale e una gestione efficiente dell'energia.
- Impianto di raffrescamento con deumidificatore a pavimento e termostato in ogni locale, permettendo un controllo personalizzato della temperatura in ogni ambiente.
- Videocitofono, che contribuisce alla sicurezza dell'intero complesso attraverso il controllo degli accessi.

La Residenza Corallo si propone così come un'eccellente soluzione abitativa, coniugando design accurato, tecnologia e un'attenzione scrupolosa alla qualità costruttiva.

Mostra tutto

Nelle vicinanze

Trasporto pubblico Trasporto pubblico
220
220
2,8 Km
Villamaggiore
Villamaggiore
720 m
Pieve Emanuele
Pieve Emanuele
2,8 Km
Scuole Scuole
Istituto comprensivo di Siziano
380 m
Centro Polifunzionale
2,9 Km
Supermercati Supermercati
Tigros
760 m
Bar Bar
Bar
910 m
Ristoranti Ristoranti
Ristoranti
610 m
Pizzeria della Madonna
810 m
La Fortuna
2,6 Km
Mostra tutto

Caratteristiche

Rif.:
61028525
Piano:
2 di 4 con ascensore (Piano medio)
Box:
1
Balconi:
1
Terrazzi:
1
Camere da letto:
3
Mostra tutto
Prezzo Prezzo
€ 380.000
Rata mutuo Rata mutuo
€ 1.805 / mese
Proponi il tuo prezzoProponi il tuo prezzo

Classe Energetica

A4
A4
A4
A4
A4
A4
A4
A4
A4
EP globale non rinnovabile:
18.31 kW h/m² anno
EP globale rinnovabile:
68.38 kW h/m² anno
EP invernale del fabbricato:
EP estiva del fabbricato:
Anno di costruzione:
2026
Riscaldamento:
Autonomo
Tipo impianto:
A pavimento
Tipo alimentazione:
Altro

Ti interessa visionare l'immobile?

Fissa un appuntamento  Fissa un appuntamento

Richiedi informazioni

Clicca su Leggi per aprire l'informativa
* Questi campi sono obbligatori

Calcola il tuo mutuo

Semplice e senza impegno
Anticipo

( % )
Mutuo

( % )

pochi semplici passi

inserisci i tuoi dati
Questionario completato
Grazie per aver richiesto un appuntamento senza impegno con un nostro Consulente del Credito e Assicurativo.

Hai inserito correttamente tutti i dati necessari e a breve riceverai una e-mail con un link da convalidare per inviare i tuoi dati.
Affiliato
Studio Lacchiarella Sas
Via Roma, 31 27010 Siziano (PV)

Il nostro staff


  • Elisabetta Maccazzola
    Affiliata

  • Paola Nuzzo
    Responsabile

  • Matteo Giambattista
    Affiliato

  • Niccolò Chiodini
    Collaboratore
Via Roma, 31 27010 Siziano (PV)
Zona: Siziano-Villamaggiore-Landriano-Pairana-Bascapè
Mostra su mappa
Orari: Da Lunedì a Venerdì 9:00 -12:30 /14:30-20:00 Sabato 9:00-12:30/ 14:30-18:00
Affiliato
Studio Lacchiarella Sas
Via Roma, 31 27010 Siziano (PV)

2026 Tecnocasa Franchising S.p.A. - P. IVA 08365160152 - Via Monte Bianco 60/A 20089 Rozzano (MI). Ogni agenzia ha un proprio titolare ed è autonoma. Privacy policy | Policy utilizzo | Cookie policy